УСТАНОВКА ПОВЫШЕНИЯ ДАВЛЕНИЯ Hydro Solo E CRE 3-5 1x200-240V

Описание
Установка повышения давления Grundfos Hydro Solo-E с одним насосом представляет собой единый агрегат, включающий в себя один E-насос (CRE), снабженный запорным клапаном, обратным клапаном, напорным патрубком, датчиком давления, манометром и мембранным гидробаком. Установка повышения давления готова к эксплуатации сразу после доставки.
Установка собрана на заводе и протестирована для работы в режиме постоянного давления.
Насос оснащен трехфазным фланцевым соединением IEC Двигатель MGE с преобразователем частоты и ПИ-контроллер встроен в клеммную коробку двигателя Никакой дополнительной защиты двигателя не требуется, так как и двигатель, и электроника защищены встроенной защитой от перегрузки и высокой температуры.
Панель управления позволяет установить требуемое заданное значение, а также установить насос в положение MIN или MAX производительности или до останова. Индикатор Grundfos Eye на панели управления обеспечивает визуальную индикацию работы насоса: панель управления имеет индикаторы
- «ВКЛ»: двигатель работает (вращается зеленый индикатор) или не работает (постоянно горит зеленый индикатор)
- «Предупреждение»: двигатель все еще работает (вращается желтый индикатор) или остановлен (постоянно горит желтый индикатор)
- «Тревога»: двигатель остановлен (мигает красный индикатор).
Связь с насосом возможна с помощью Grundfos GO Remote (принадлежность). Пульт дистанционного управления позволяет выполнять дальнейшие настройки, а также считывать ряд параметров, таких как «Фактическое значение», «Скорость», «Потребляемая мощность» и общая «Потребляемая мощность». Клеммная коробка имеет ряд входов и выходов, позволяющих использовать двигатель в сложных условиях:
- Два выделенных цифровых входа
- Три аналоговых входа, 0 (4) -20 мА, 0-5 В, 0-10 В, 0,5 - 3,5 В
- 5 В подача напряжения на потенциометр и датчик
- Один аналоговый выход, 0-10 В, 0 (4) -20 мА
- Два настраиваемых цифровых входа или выхода с открытым коллектором
- Два входа Pt100 / Pt1000
- LiqTec, вход датчика защиты от сухого хода
- Grundfos Digital Sensor вход и выход
- Напряжение питания 24 В для датчиков
- Два сигнальных релейных выхода (беспотенциальные контакты)
- GENIbus соединение
- Интерфейс для модуля Grundfos CIM.
Жидкость:
Рабочая жидкость: Вода
Диапазон температур жидкости: 0 .. 60 °C
Температура перекачиваемой жидкости: 20 °C
Плотность: 998.2 кг/м³
Технические данные:
Номинальный расход: 3.5 м³/ч
Номинальный напор: 34 м
Код торцевого уплотнения вала: HQQE
Материалы:
Основание: Чугун
EN 1561 EN-GJL-200
ASTM A48-25B
Рабочее колесо: Нержавеющая сталь
Рабочее колесо, EN/DIN: EN 1.4301
Рабочее колесо, AISI/ASTM: AISI 304
Монтаж:
Макс. температура окр. среды: 50 °C
Макс. рабочее давление: 10 бар
Standard for inlet connection: ОВАЛЬНЫЙ
Type of inlet connection: Rp
Type of outlet connection: Rp
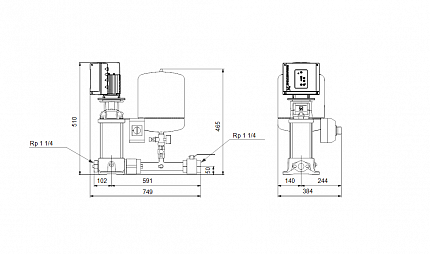
Размер всасывающего патрубка: 1 1/4 inch
Размер напорного патрубка: 1 1/4 inch
Размер фланца электродвигателя: FT100
Данные электрооборудования:
Тип электродвигателя: 80A
Номинальная мощность - P2: 0.75 кВт
Частота питающей сети: 50 / 60 Hz
Номинальное напряжение: 1 x 200-240 В
Номинальный ток: 4.70-3.90 A
Cos фи - характеристика мощности: 0.99
Номинальная скорость: 360-4000 об/м
Степень защиты (IEC 34-5): IP55
Класс изоляции (IEC 85): F
Номер электродвигателя: 98248279
Резервуар:
Объем напорного бака: 18 л
Другое:
Масса нетто: 38.5 кг
Масса брутто: 47.2 кг
Объем упаковки: 0.6 м³
Cтрана происхождения: RU
ТН ВЭД ЕАЭС Код: 8413707500
Характеристики
- Артикул GRN98453509
- Тип насоса Повышения давления
- Производитель Grundfos
- Максимальный расход, м³/ч 5,2
- Максимальный напор, м 44,4
- Максимальная мощность, кВт 0,75
- Частота вращения двигателя, об/мин 4000
- Гарантия, г 2
- Объем бака, л 18
- Максимальное давление, бар 10
Отзывы и оценки